250 시리즈 E2 시스템 중형: E-Chain®, 간편 조립, 변종식 내부 분리 스트레인 릴리프를 통합 가능, 외부에서 플립 오픈 내부 높이: 25 mm.

단종예정품목
250.02.055.0 product image
igus-icon-lupe
250.02.055.0 technical drawing
igus-icon-lupe
2 의 1
250.02.055.0 product image
250.02.055.0 technical drawing
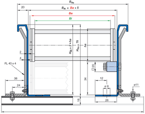
내부 높이 [Hi]
내부 높이 [Hi]
25 mm
최대 케이블 직경
최대 케이블 직경
23 mm
개방 방식
개방 방식
외부 반경을 따라 개방 가능
내부 폭 [Bi]
내부 폭 [Bi]
25 mm
곡률 반경 [R]
곡률 반경 [R]
55 mm
적합한지 확실하지 않으신가요?