단계적 중단 모델
신규 설계에 대하여 기술적으로 발전된 E-Chain® E2 튜브 시리즈 R68의 사용을 권장합니다.
구형 R68 시리즈는 기확보된 재고에 한하여 공급가능합니다. 제품과 관련한 지원과 재고 보관은 2012년부터 제한됩니다. 문의 사항이 있으시면 귀하의 지역에 있는 igus® 사무소에 연락하시기 바랍니다. 이해해주셔서 감사합니다.
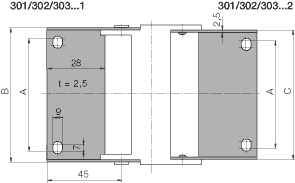
E-ChainSystem®을 개별적으로 구성할 수 있습니다. 페이지 끝에 있는 부품 목록에서 모든 입력과 변경이 이루어 집니다.
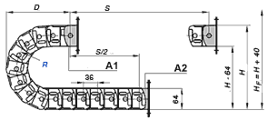
R68 시리즈 - 튜브, 외부 반경 측에서 스냅 오픈
1. 거의 완벽한 기밀을 유지하는 밀폐형 - 케이블과 호스 보호에 매우 우수하며, 고온의 침 침투에도 보호
2. 경량 및 정숙 구동을 위한 작은 피치
3. 외부 반경측에서 덮개 분리가능
E2R 시리즈 R68용으로, 새롭게 사용 가능한 내부 높이 Bi: 75 - 175 mm
가용 곡률 반경: 100 - 300 mm
피치: 36 mm/링크 = 28 링크/m