[[신규 설계의 경우, E4.1 제품군의 개선된 에너지체인 E4.80 시리즈를 권장합니다.
질문이 있는 경우, 이구스 담당자에게 문의하십시오. E4.80 시리즈에 관심을 보여 주셔서 감사합니다.
E-ChainSystem®을 개별적으로 구성할 수 있습니다. 페이지 끝에 있는 부품 목록에서 모든 입력과 변경이 이루어 집니다.
R9850 시리즈 - 튜브, 밀폐형
1. 요철식 구조로 "측면 창착"시 높은 안정성 확보
2. 비틀림에 대한 높은 안정성
3. 밀폐형 및 개방형을 결합 가능
4. 힌지타입 스냅 오픈으로 덮개 제거 가능 - e튜브
5. 다양한 옵션의 내부 분리
6. e체인 내 장착된 크로스바는 양쪽에서 분리 가능
7. 측면 장착 주행을 위한 횡축 방향 글라이딩 표면
8. 케이블 보호, 광폭의 폴리머 크로스바
9. "만능" 장착 방식의 KMA 마운팅 브라켓
10. 피봇팅 또는 고정식의 스트레인 릴리프가 통합된 마운팅 브라켓 사용 가능
11. 역/양측 곡률 반경 RBR로 대체 사용 가능
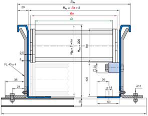
가용 내부 높이: 75 - 462 mm
가용 곡률 반경: 200 - 1,000 mm
피치: 91 mm/링크 = 11 링크/m