[[신규 설계의 경우, E4.1 제품군의 개선된 에너지체인 E4.32 시리즈를 권장합니다.
질문이 있는 경우, igus® 담당자에게 문의하십시오. E4.32 시리즈에 관심을 보여 주셔서 감사합니다.
E-ChainSystem®을 개별적으로 구성할 수 있습니다. 페이지 끝에 있는 부품 목록에서 모든 입력과 변경이 이루어 집니다.
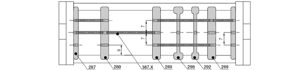
280 시리즈, 링크 마다 크로스바가 장착된 E-Chain®
1. e체인 내 장착된 크로스바는 양쪽에서 분리 가능
2. 다양한 옵션 구성이 가능한 내부 분리
3. 밀폐형 및 개방형을 결합 가능
4. 저소음 작동을 위한 "브레이크" 기능 탑재 스톱독
5. 최적화된 글라이드 표면
6. 케이블 보호, 광폭의 폴리머 크로스바
7. 힌지타입 스냅 오픈으로 덮개 제거 가능 - e튜브
8. "만능" 장착 방식의 KMA 마운팅 브라켓
9. 고정 또는 피봇팅 마운팅 브라켓 사용 가능
10. 옵션 - Chainfix 클립 또는 체인 타이랩 플레이트가 포함된 일체형 C-프로파일 스트레인 릴리프
11. 역/양측 곡률 반경 RBR로 대체 사용 가능
E4/00-NC = E-Chain® 떠오르는 텐션 없이도 사용 가능
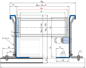
가용 내부 폭: 50 - 400 mm
가용 곡률 반경: 63 - 300 mm
피치: 56 mm / 링크 = 18 링크/m