[[igus® E4.1 모듈식 키트에서 새로운 디자인으로 신기술로 최적화된 E-Chains® 시리즈 E4.28을 권장합니다.
 
질문이 있으면 igus® 담당자에게 문의하십시오. 시리즈 E4.28에 관심을 가져 주셔서 감사합니다.
     
    
      
        E-ChainSystem®을 개별적으로 구성할 수 있습니다. 페이지 끝에 있는 부품 목록에서 모든 입력과 변경이 이루어 집니다.
       
     
    
	
    220 시리즈, 링크 마다 크로스바가 장착된 E-Chain®
    1. e체인 내 장착된 크로스바는 양쪽에서 분리 가능 
 2. 플라스틱 크로스바용 케이블 보호를 위한 폭 
 3. 소음 저감을 위해 "브레이크" 기능 탑재한 스톱독 
 4. 밀폐형 및 개방형 결합 가능 
 5. 스냅 오픈이 가능한 힌지형 덮개 - E-Tube 
 6. 글라이딩 모션을 위한 최적화된 표면 
 7. 다양한 옵션 구성이 가능한 내장 분리 
 8. "만능" 장착 방식의 KMA 마운팅 브라켓 
 9. 고정 또는 피봇팅 마운팅 브라켓 사용 가능 
 10. 스트레인 릴리프를 마운팅 브라켓에 통합할 수 있습니다 
 11. 역/양측 곡률 반경 RBR로 대체 사용 가능
    E4/00-NC = 체인이 떠오르는 텐션 없이도 E-Chain® 사용 가능 
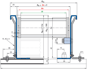
 가용 내부 폭: 40 - 300 mm 
가용 곡률 반경: 55 - 250 mm 
피치: 46 mm / 링크 = 22 링크/m