[[신규 설계의 경우, E4.1 제품군의 개선된 에너지체인 R4.32 시리즈를 권장합니다.
질문이 있는 경우, 이구스 담당자에게 문의하십시오. R4.32 시리즈에 관심을 보여 주셔서 감사합니다.
E-ChainSystem®을 개별적으로 구성할 수 있습니다. 페이지 끝에 있는 부품 목록에서 모든 입력과 변경이 이루어 집니다.
7728 시리즈 - 튜브, 밀폐형
1. 요철식 구조로 "측면 창착"시 높은 안정성 확보
2. 비틀림에 대한 높은 안정성
3. e체인 내 장착된 크로스바는 양쪽에서 분리 가능
4. 폐쇄 및 개방 구역 결합 가능
5. 다양한 옵션의 내부 분리
6. 힌지 타입 스냅 오픈으로 덮개 제거 가능 - e튜브
7. 측면 장착 주행을 위한 횡축 방향 글라이딩 표면
8. 폴리머 크로스바 용 케이블 친화적 너비
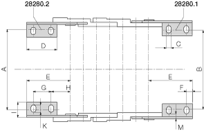
9. "만능" 체결이 가능한 범용 KMA 마운팅 브라켓
10. 피봇팅 또는 고정식의 스트레인 릴리프가 통합된 마운팅 브라켓 사용 가능
11. 역/양측 곡률 반경 RBR로 대체 사용 가능
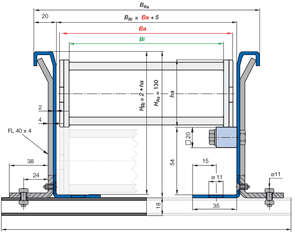
가용 내부 폭: 50 - 300 mm
가용 곡률 반경: 100 - 300 mm
피치: 56 mm / 링크 = 18 링크/m